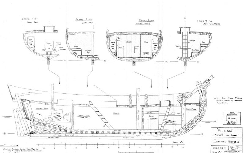
David Wyman 2004 –
Working design showing the internal organization of Virginia
John Bradford 2003 –
This single sheet line drawing in the style of 16th century shipwright Matthew Baker shows the shape and proportions of Virginia from multiple angles.
Fred Walker, Naval Architects 2001, 2002 –
Historical design for Virginia with ocean rigging giving particulars for size and weight.
Hunt Plan – Spain, Simancas General Archive, MPD,19,163 John Hunt 1607 Ink on paper A plan of Fort St George drawn on October 8. 1607.Read More
Fred Gosbee 2020 Wood 17th century ships used a pulley system to hoist heavy spars. The part fixed on the deck is known as aRead More
Traditional Rigging Co, Appleton Maine 2019 Canvas, rope, and twine Virginia’s sails are reinforced with rope which is handsewn by the sailmaker. At each cornerRead More
MFS rigging crewe 2019 Twine and wood This is a double block (pulley) and a grommet which is a rope formed into a circle. TheRead More